可拓展卧铺,loft双层驾驶室,带你看依维柯在卡车驾驶室上整的花活
在卡车设计的天马行空方面,意大利人和法国人从来不会让人失望。一种是“法式浪漫”,一种是“意式优雅”,法国雷诺和意大利依维柯这一对卧龙凤雏总是能整出一些让人眼前一黑的绝顶好活。比如依维柯,就在自己的S-Way卡车上推出了一款名叫FitCab的驾驶室。驾驶员能够借助驾驶室内原厂固定的健身器材,实现开车健身两不误,属实健康嗷。

仔细盘点一下,依维柯的历史上,确实诞生过不少各种各样奇特的驾驶室构型。有的是概念、有的是创新、有的甚至是单纯的整活。今天呢,咱提加商用车网为您选出了两款独特的难得一见的驾驶室概念,带您一同欣赏,仅在依维柯哦!
1#带滑移舱的驾驶室:Trans Saharian原型车
如今,各国的法规都对在道路上行驶的车辆的外廓尺寸进行了严格的限制,想要在小小的限制尺寸内实现更大的空间感,除了优化内部布局,用灵活性来弥补空间问题之外,另一种手段就是得借助外力了。比如房车上常见的滑移舱,不管是进口房车还是国产房车,很多都会配备滑移舱来拓展内部空间。

比如上图中的德国Vario Signature 1200型A型房车,就在侧壁上安装了多个滑移舱,用来拓展内部起居空间。行驶的时候收起来,不会让车辆超出尺寸限制。停车的时候展开,又能变出大大的空间。

那么,这么好的设计能不能用到卡车上呢?依维柯的答案是:确实行!上图中这款卡车诞生于1980年,叫做Trans Saharian,由著名设计师Franco Quiringhetti操刀设计。这位设计师的核心思想就是:既然开车的时候不需要睡觉,停车的时候不限制外廓尺寸,那我为什么不把卧铺做成可滑移拓展的呢?因此,这款概念车就诞生了。

这款卡车基于当时的190.35卡车研发而来,还能看到它配备了当时非常流行的Trilex爪式轮毂,便于更换轮胎。滑移舱侧壁由皮质材料制成,前部带有玻璃,增强采光表现。而在驾驶室内部,依维柯设计了简易卫生间、厨房以及两个卧铺、休息沙发等设备。可惜的是,这个概念过于超前,而当年的技术水平无法实现以低廉的价格量产这种卡车,后来的安全法规又将这种结构判了死刑。有个后卧铺睡也能解决睡眠问题,还要什么自行车呢?
2#loft一样的小双层驾驶室,葫芦里藏的什么药?
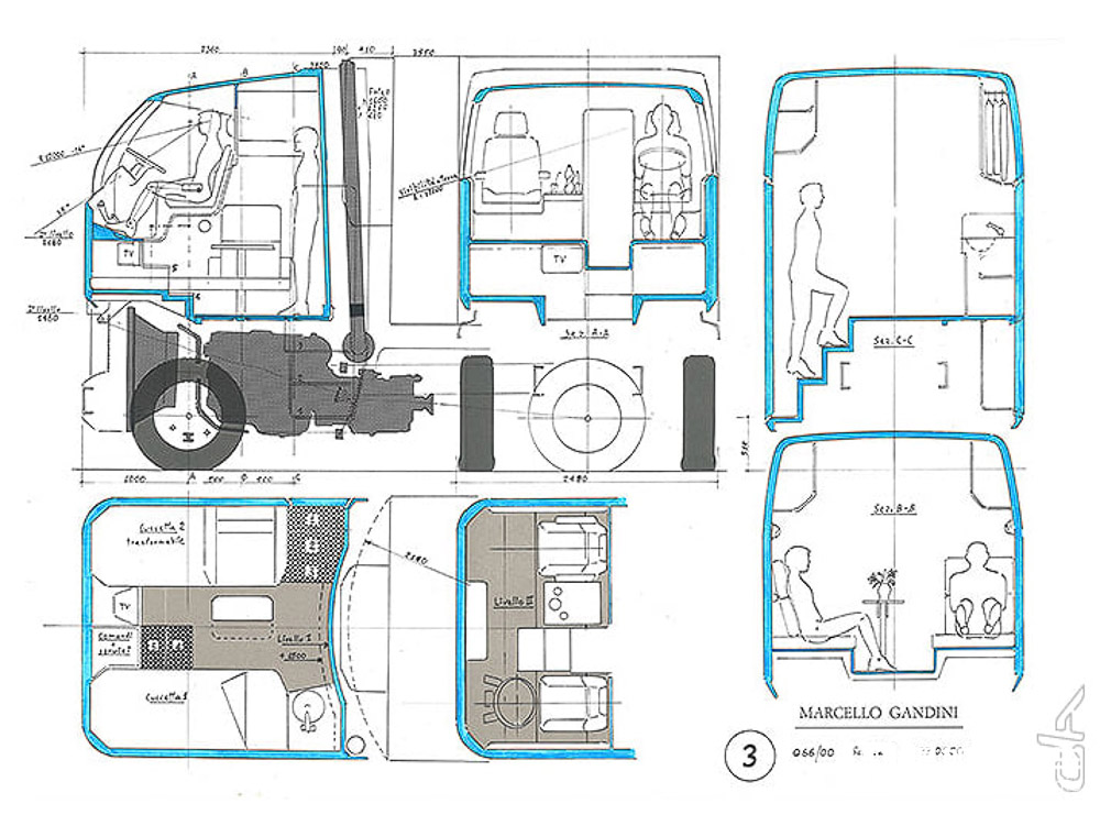
接下来要介绍的这款驾驶室并没有量产,仅停留在了设计图上。这款驾驶室诞生于2000年前后,由依维柯设计师Marcello Gandini操刀设计。这项设计主要是顺应菲亚特集团内部的策略,对未来卡车、商用车可能搭载的驾驶室进行一个早期探索。

驾驶室设计图长这样。可以大致看出,这款驾驶室明显的分为了上下两层布局,将驾驶区域和生活区域进行了隔离,互不干扰。比起现代卡车驾驶室的“大平层”户型,这种“Loft”户型的复杂度可就直线上升了。接下来,我们就每张图挨个来看看。

首先是它的侧视图。图中的数据虽然模糊,但还是可以隐约看到:这款驾驶室的长度为2340毫米,差不多就是现在沃尔沃Globetrotter XXL驾驶室以及斯堪尼亚CS23H驾驶时的长度。驾驶室内部高度极高,为了让出空间,车辆的发动机变速箱等动力系统进行了下移布置。驾驶员的工作区在左上方的顶部,坐的非常高。而在后方呢,是一块很大的区域,里面安装了小桌板和沙发等配置。

第二张设计图是正视图。可以看到除了主驾驶座椅外,车辆还安装了副驾驶座椅。驾驶舱后方带有门和台阶,和下方较低的生活舱联通。生活舱内部还配备了电视机,可以看到图上的TV标识。

驾驶区域的俯视图如上所示,左下角为驾驶员座椅。可以看到,其实前部浪费了不少空间。和生活区联通的门紧挨着主驾驶座椅,为副驾驶座椅旁边的茶几和杯架让出空间。

第三张图片的视角依旧是从前脸看入,不过直接看到了驾驶室最后方的区域。可以看到,车辆为了方便登车设计了巨大的一体式台阶,并带有洗脸池、衣架以及吊柜等生活设施。

这张图是驾驶室下层生活区的俯视图。可以看到:两个沙发采用对坐布置,中间安装了小桌子。沙发也可以当成沙发床,一共两张床,满足双人到三人的生活需求。楼梯区域在图片上由黑色网格覆盖,地板区域采用灰色底色。右下角(对应车辆左后方)安装了车辆的洗手台。

下层的横截面如图所示,左右两个沙发设计,带有中央小桌板,还可变成沙发床,搭配车载洗手池等设备,生活配置拉满。

配备了这么复杂的驾驶室,最终的车辆外观长啥样?答案是上图:超级高的驾驶室风挡位置、大弧度玻璃、为增强视野而加入的腿部玻璃窗等等,属实是天马行空。先不说它的安全问题,光是它这弧面前风挡就浪费了不少驾驶室内部空间。而且,这么复杂的驾驶室,势必会对制造、使用、维护成本以及车辆的结构安全性造成负面影响。因此,这款卡车也就停留在了设计阶段,并未走出图纸,作为了菲亚特集团的技术积累雪藏至今。
结语

和依维柯家族的老前辈们相比起来,如今的依维柯公路旗舰:S-Way卡车所配备的驾驶室就要踏实得多。虽然没有搞那些花活,但引入的先进设计思路,也让这款驾驶室具备了人性化、高舒适度的特点,一改依维柯落后于其他厂家的面貌,使依维柯追上了时代的发展。
感谢您阅读本篇文章!还想看到更多有趣有料的商用车内容,别忘了关注我们哦!



